Thông số kĩ thuật của phụ kiện tủ 6 tầng Milan Series-Hafele 549.91.173
- Chất liệu: Khung thép, kệ bằng thép hoặc inox 304
- Màu hoàn thiện: Khung màu xám, kệ bằng thép mạ crom hoặc inox bóng
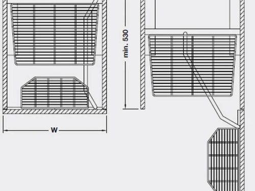
- Chiều rộng cửa tủ: 600mm
- Chiều sâu khoang tủ tối thiểu: 530mm
- Số lượng khay: 12 (6 gắn cánh + 6 trong khoang tủ)
- Kích thước kệ (RxSxC)mm: (540 x 500 x 1,820)mm
- Tải trọng:
- Tủ có kệ gắn cửa 600mm: Tối đa 6kg
- Tủ có kệ kéo ra ngoài 600mm: Tối đa 40kg
- Phiên bản: Mở rộng đơn với ray bi mở 3/4
- Kệ bên trong có thể điều chỉnh vị trí và kệ gắn tủ có thể tháo ra
- Có thể xoay trái và xoay phải
- Trọn bộ gồm: thanh ray, khung kéo, bas trước, khay/kệ được tích hợp bộ giảm chấn, bộ ốc vít.
- Đóng gói: 1 bộ








Đánh giá
Chưa có đánh giá nào.